OPTYMA BOCK PLUS UNIT 3PH - 5HP - SHGX34E2154SPPV
OPTYMA BOCK PLUS UNIT 3PH - 5HP
Part Number: SHGX34E2154SPPVOPTYMA BOCK PLUS UNIT 3PH - 5HP
Part Number: SHGX34E2154SPPVSign in to your Aire-Biz account to view pricing and stock levels.
Sign in Not an Airefrig customer? Complete our online account application form here to apply for a credit account.
BOCK® Plusbox outdoor condensing units are built utilizing BOCK® semi-hermetic compressors & coupled with generously sized condensers ensure a unit that is flexible, efficient & reliable suitable for most climate conditions. Plusbox units supplied by Airefrig Australia Pty Ltd are fitted as standard with a Danfoss FC103 frequency drive that allows the compressor to be driven up to frequencies of 70Hz and down to 25Hz for efficient capacity control. The Plusbox includes other quality components such as XGE fan speed controller, low-noise AC condenser fan, liquid receiver, liquid & suction pipework including liquid drier & sight glass, MP55 differential oil pressure switch, dual pressure control, robust weatherproof powder-coated acoustically lined steel housing & is fully wired.
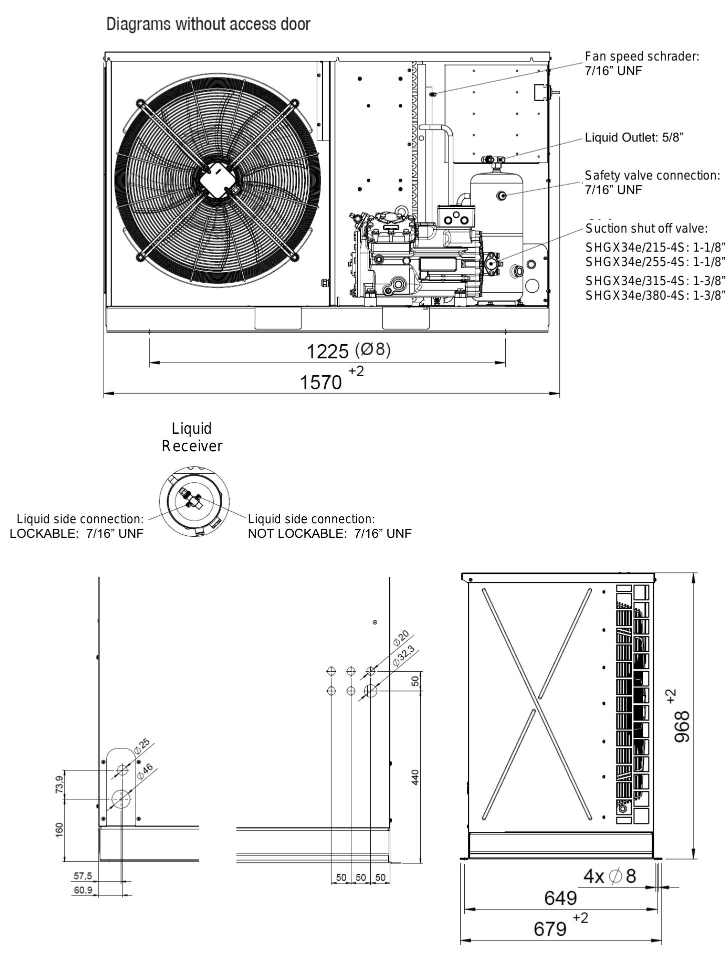
Condensing Unit Specifications | Weight | 201 Kg |
| Liquid Line Connection | 1/2 " |
| Suction Line Connection | 1-1/8 " |
| Receiver Capacity | 8 L |
Compressor | Max Continuous Current | 10.5 Amps |
| Voltage | 380-420V Y - 3 - 50Hz |
| Motor Type | Inverter |
| Crankcase Heater | 230V - 1 - 50Hz |
Fan Motors | Total FLA | 2.6 Amps |
| Quantity | 1 |
| Voltage | 230V - 1 - 50Hz |
R404A Frequency - 25
| Ambient (°C) | Refrigeration Capacity (w) |
|---|
| Evaporating Temperature (°C) |
|---|
| -40 | -35 | -30 | -25 | -20 | -15 | -10 | -5 | 0 | 5 |
|---|
| 32 | 834 | 1270 | 1790 | 2430 | 3190 | 4090 | 5140 | 6340 | 7710 | 9250 |
| 38 | 699 | 1070 | 1540 | 2100 | 2780 | 3590 | 4540 | 5640 | 6900 | 8340 |
| 43 | 591 | 917 | 1330 | 1830 | 2440 | 3180 | 4050 | 5070 | 6240 | 7590 |
Frequency - 35
| Ambient (°C) | Refrigeration Capacity (w) |
|---|
| Evaporating Temperature (°C) |
|---|
| -40 | -35 | -30 | -25 | -20 | -15 | -10 | -5 | 0 | 5 |
|---|
| 32 | 1190 | 1790 | 2520 | 3410 | 4460 | 5690 | 7100 | 8720 | 10600 | 12600 |
| 38 | 992 | 1520 | 2160 | 2940 | 3880 | 4980 | 6270 | 7750 | 9430 | 11400 |
| 43 | 838 | 1300 | 1870 | 2560 | 3400 | 4410 | 5580 | 6950 | 8510 | 10400 |
Frequency - 45
| Ambient (°C) | Refrigeration Capacity (w) |
|---|
| Evaporating Temperature (°C) |
|---|
| -40 | -35 | -30 | -25 | -20 | -15 | -10 | -5 | 0 | 5 |
|---|
| 32 | 1510 | 2270 | 3180 | 4280 | 5580 | 7080 | 8810 | 10800 | 13000 | 15400 |
| 38 | 1260 | 1920 | 2720 | 3690 | 4850 | 6200 | 7760 | 9540 | 11600 | 13900 |
| 43 | 1070 | 1640 | 2350 | 3210 | 4250 | 5470 | 6900 | 8540 | 10500 | 12600 |
Frequency - 50
| Ambient (°C) | Refrigeration Capacity (w) |
|---|
| Evaporating Temperature (°C) |
|---|
| -40 | -35 | -30 | -25 | -20 | -15 | -10 | -5 | 0 | 5 |
|---|
| 32 | 1660 | 2490 | 3490 | 4680 | 6090 | 7710 | 9570 | 11700 | 14100 | 16700 |
| 38 | 1390 | 2110 | 2980 | 4040 | 5290 | 6740 | 8420 | 10400 | 12500 | 15000 |
| 43 | 1170 | 1800 | 2580 | 3510 | 4630 | 5950 | 7490 | 9250 | 11300 | 13600 |
Frequency - 55
| Ambient (°C) | Refrigeration Capacity (w) |
|---|
| Evaporating Temperature (°C) |
|---|
| -40 | -35 | -30 | -25 | -20 | -15 | -10 | -5 | 0 | 5 |
|---|
| 32 | 1800 | 2700 | 3780 | 5060 | 6570 | 8300 | 10300 | 12600 | 15000 | 17800 |
| 38 | 1510 | 2280 | 3230 | 4360 | 5700 | 7250 | 9040 | 11100 | 13400 | 16000 |
| 43 | 1270 | 1950 | 2790 | 3790 | 4990 | 6400 | 8030 | 9900 | 12100 | 14500 |
Frequency - 65
| Ambient (°C) | Refrigeration Capacity (w) |
|---|
| Evaporating Temperature (°C) |
|---|
| -40 | -35 | -30 | -25 | -20 | -15 | -10 | -5 | 0 | 5 |
|---|
| 32 | 2070 | 3090 | 4310 | 5760 | 7440 | 9370 | 11600 | 14100 | 16800 | 19800 |
| 38 | 1730 | 2610 | 3680 | 4950 | 6450 | 8180 | 10200 | 12400 | 14900 | 17700 |
| 43 | 1460 | 2230 | 3170 | 4300 | 5640 | 7210 | 9010 | 11100 | 13400 | 16100 |
Note:
Performance data, based on 10K Superheat and 3.0K sub-cooling (outside cond)
BOCK® Plusbox units are supplied in a weatherproofed powder coated steel sheet housing.
Factory fitted with: BOCK® semi-hermetic compressor in acoustically lined encloser.
Factory fitted with: Danfoss FC103 Inverter.
Factory fitted with: Complete liquid and suction pipework including liquid line drier & sight glass.
Factory fitted with: AC low noise condenser fan & XGE fan speed controller.
Factory fitted with: Sump heater & oil separator.
Factory fitted with: KP17WB dual pressure control & MP55 oil pressure switch.
Factory fitted with: Electrical switch board & main isolator.
All electrical components are factory pre-wired.
R507 Frequency - 25
| Ambient (°C) | Refrigeration Capacity (w) |
|---|
| Evaporating Temperature (°C) |
|---|
| -40 | -35 | -30 | -25 | -20 | -15 | -10 | -5 | 0 | 5 |
|---|
| 32 | 834 | 1270 | 1790 | 2430 | 3190 | 4090 | 5140 | 6340 | 7710 | 9250 |
| 38 | 699 | 1070 | 1540 | 2100 | 2780 | 3590 | 4540 | 5640 | 6900 | 8340 |
| 43 | 591 | 917 | 1330 | 1830 | 2440 | 3180 | 4050 | 5070 | 6240 | 7590 |
Frequency - 35
| Ambient (°C) | Refrigeration Capacity (w) |
|---|
| Evaporating Temperature (°C) |
|---|
| -40 | -35 | -30 | -25 | -20 | -15 | -10 | -5 | 0 | 5 |
|---|
| 32 | 1190 | 1790 | 2520 | 3410 | 4460 | 5690 | 7100 | 8720 | 10600 | 12600 |
| 38 | 992 | 1520 | 2160 | 2940 | 3880 | 4980 | 6270 | 7750 | 9430 | 11400 |
| 43 | 838 | 1300 | 1870 | 2560 | 3400 | 4410 | 5580 | 6950 | 8510 | 10400 |
Frequency - 45
| Ambient (°C) | Refrigeration Capacity (w) |
|---|
| Evaporating Temperature (°C) |
|---|
| -40 | -35 | -30 | -25 | -20 | -15 | -10 | -5 | 0 | 5 |
|---|
| 32 | 1510 | 2270 | 3180 | 4280 | 5580 | 7080 | 8810 | 10800 | 13000 | 15400 |
| 38 | 1260 | 1920 | 2720 | 3690 | 4850 | 6200 | 7760 | 9540 | 11600 | 13900 |
| 43 | 1070 | 1640 | 2350 | 3210 | 4250 | 5470 | 6900 | 8540 | 10500 | 12600 |
Frequency - 50
| Ambient (°C) | Refrigeration Capacity (w) |
|---|
| Evaporating Temperature (°C) |
|---|
| -40 | -35 | -30 | -25 | -20 | -15 | -10 | -5 | 0 | 5 |
|---|
| 32 | 1660 | 2490 | 3490 | 4680 | 6090 | 7710 | 9570 | 11700 | 14100 | 16700 |
| 38 | 1390 | 2110 | 2980 | 4040 | 5290 | 6740 | 8420 | 10400 | 12500 | 15000 |
| 43 | 1170 | 1800 | 2580 | 3510 | 4630 | 5950 | 7490 | 9250 | 11300 | 13600 |
Frequency - 55
| Ambient (°C) | Refrigeration Capacity (w) |
|---|
| Evaporating Temperature (°C) |
|---|
| -40 | -35 | -30 | -25 | -20 | -15 | -10 | -5 | 0 | 5 |
|---|
| 32 | 1800 | 2700 | 3780 | 5060 | 6570 | 8300 | 10300 | 12600 | 15000 | 17800 |
| 38 | 1510 | 2280 | 3230 | 4360 | 5700 | 7250 | 9040 | 11100 | 13400 | 16000 |
| 43 | 1270 | 1950 | 2790 | 3790 | 4990 | 6400 | 8030 | 9900 | 12100 | 14500 |
Frequency - 65
| Ambient (°C) | Refrigeration Capacity (w) |
|---|
| Evaporating Temperature (°C) |
|---|
| -40 | -35 | -30 | -25 | -20 | -15 | -10 | -5 | 0 | 5 |
|---|
| 32 | 2070 | 3090 | 4310 | 5760 | 7440 | 9370 | 11600 | 14100 | 16800 | 19800 |
| 38 | 1730 | 2610 | 3680 | 4950 | 6450 | 8180 | 10200 | 12400 | 14900 | 17700 |
| 43 | 1460 | 2230 | 3170 | 4300 | 5640 | 7210 | 9010 | 11100 | 13400 | 16100 |
Note:
Performance data, based on 10K Superheat and 3.0K sub-cooling (outside cond)
BOCK® Plusbox units are supplied in a weatherproofed powder coated steel sheet housing.
Factory fitted with: BOCK® semi-hermetic compressor in acoustically lined encloser.
Factory fitted with: Danfoss FC103 Inverter.
Factory fitted with: Complete liquid and suction pipework including liquid line drier & sight glass.
Factory fitted with: AC low noise condenser fan & XGE fan speed controller.
Factory fitted with: Sump heater & oil separator.
Factory fitted with: KP17WB dual pressure control & MP55 oil pressure switch.
Factory fitted with: Electrical switch board & main isolator.
All electrical components are factory pre-wired.
R448A Frequency - 25
| Ambient (°C) | Refrigeration Capacity (w) |
|---|
| Evaporating Temperature (°C) |
|---|
| -40 | -35 | -30 | -25 | -20 | -15 | -10 | -5 | 0 | 5 |
|---|
| 32 | 602 | 992 | 1480 | 2080 | 2800 | 3660 | 4680 | 5860 | 7220 | 8760 |
| 38 | 476 | 821 | 1260 | 1790 | 2450 | 3240 | 4180 | 5280 | 6550 | 8000 |
| 43 | 401 | 706 | 1100 | 1580 | 2180 | 2900 | 3770 | 4800 | 6000 | 7370 |
Frequency - 35
| Ambient (°C) | Refrigeration Capacity (w) |
|---|
| Evaporating Temperature (°C) |
|---|
| -40 | -35 | -30 | -25 | -20 | -15 | -10 | -5 | 0 | 5 |
|---|
| 32 | 851 | 1410 | 2090 | 2910 | 3910 | 5090 | 6480 | 8070 | 9890 | 12000 |
| 38 | 675 | 1170 | 1770 | 2520 | 3420 | 4510 | 5780 | 7260 | 8960 | 10900 |
| 43 | | 1010 | 1550 | 2220 | 3040 | 4040 | 5220 | 6600 | 8200 | 10100 |
Frequency - 45
| Ambient (°C) | Refrigeration Capacity (w) |
|---|
| Evaporating Temperature (°C) |
|---|
| -40 | -35 | -30 | -25 | -20 | -15 | -10 | -5 | 0 | 5 |
|---|
| 32 | 1080 | 1780 | 2630 | 3660 | 4900 | 6350 | 8040 | 9980 | 12200 | 14700 |
| 38 | 856 | 1480 | 2240 | 3170 | 4290 | 5620 | 7170 | 8970 | 11000 | 13300 |
| 43 | | 1280 | 1950 | 2790 | 3810 | 5040 | 6480 | 8150 | 10100 | 12300 |
Frequency - 50
| Ambient (°C) | Refrigeration Capacity (w) |
|---|
| Evaporating Temperature (°C) |
|---|
| -40 | -35 | -30 | -25 | -20 | -15 | -10 | -5 | 0 | 5 |
|---|
| 32 | 1190 | 1950 | 2880 | 4010 | 5350 | 6920 | 8750 | 10900 | 13200 | 15800 |
| 38 | 941 | 1620 | 2450 | 3460 | 4680 | 6120 | 7800 | 9730 | 12000 | 14400 |
| 43 | | 1400 | 2140 | 3060 | 4170 | 5490 | 7040 | 8840 | 10900 | 13200 |
Frequency - 55
| Ambient (°C) | Refrigeration Capacity (w) |
|---|
| Evaporating Temperature (°C) |
|---|
| -40 | -35 | -30 | -25 | -20 | -15 | -10 | -5 | 0 | 5 |
|---|
| 32 | 1290 | 2110 | 3120 | 4330 | 5770 | 7460 | 9400 | 11700 | 14100 | 16900 |
| 38 | 1030 | 1760 | 2660 | 3750 | 5050 | 6600 | 8380 | 10500 | 12800 | 15400 |
| 43 | | 1520 | 2320 | 3310 | 4500 | 5910 | 7570 | 9480 | 11700 | 14100 |
Frequency - 65
| Ambient (°C) | Refrigeration Capacity (w) |
|---|
| Evaporating Temperature (°C) |
|---|
| -40 | -35 | -30 | -25 | -20 | -15 | -10 | -5 | 0 | 5 |
|---|
| 32 | 1470 | 2410 | 3560 | 4930 | 6550 | 8430 | 10600 | 13100 | 15800 | 18800 |
| 38 | 1180 | 2010 | 3030 | 4270 | 5730 | 7450 | 9440 | 11700 | 14300 | 17100 |
| 43 | | 1750 | 2660 | 3770 | 5110 | 6690 | 8520 | 10700 | 13000 | |
Note:
Performance data, based on 10K Superheat and 3.0K sub-cooling (outside cond)
BOCK® Plusbox units are supplied in a weatherproofed powder coated steel sheet housing.
Factory fitted with: BOCK® semi-hermetic compressor in acoustically lined encloser.
Factory fitted with: Danfoss FC103 Inverter.
Factory fitted with: Complete liquid and suction pipework including liquid line drier & sight glass.
Factory fitted with: AC low noise condenser fan & XGE fan speed controller.
Factory fitted with: Sump heater & oil separator.
Factory fitted with: KP17WB dual pressure control & MP55 oil pressure switch.
Factory fitted with: Electrical switch board & main isolator.
All electrical components are factory pre-wired.
R449A Frequency - 25
| Ambient (°C) | Refrigeration Capacity (w) |
|---|
| Evaporating Temperature (°C) |
|---|
| -40 | -35 | -30 | -25 | -20 | -15 | -10 | -5 | 0 | 5 |
|---|
| 32 | 599 | 986 | 1470 | 2060 | 2780 | 3640 | 4650 | 5830 | 7180 | 8710 |
| 38 | 472 | 815 | 1250 | 1780 | 2430 | 3220 | 4150 | 5240 | 6510 | 7950 |
| 43 | 398 | 700 | 1090 | 1570 | 2160 | 2880 | 3750 | 4770 | 5950 | 7320 |
Frequency - 35
| Ambient (°C) | Refrigeration Capacity (w) |
|---|
| Evaporating Temperature (°C) |
|---|
| -40 | -35 | -30 | -25 | -20 | -15 | -10 | -5 | 0 | 5 |
|---|
| 32 | 847 | 1400 | 2070 | 2900 | 3890 | 5060 | 6440 | 8030 | 9840 | 11900 |
| 38 | 670 | 1160 | 1760 | 2500 | 3400 | 4480 | 5740 | 7220 | 8900 | 10900 |
| 43 | | 993 | 1530 | 2200 | 3020 | 4010 | 5180 | 6560 | 8140 | 9950 |
Frequency - 45
| Ambient (°C) | Refrigeration Capacity (w) |
|---|
| Evaporating Temperature (°C) |
|---|
| -40 | -35 | -30 | -25 | -20 | -15 | -10 | -5 | 0 | 5 |
|---|
| 32 | 1080 | 1770 | 2610 | 3640 | 4870 | 6320 | 8000 | 9920 | 12100 | 14600 |
| 38 | 850 | 1460 | 2220 | 3140 | 4260 | 5580 | 7130 | 8910 | 11000 | 13300 |
| 43 | | 1270 | 1940 | 2770 | 3780 | 5000 | 6430 | 8090 | 9990 | 12200 |
Frequency - 50
| Ambient (°C) | Refrigeration Capacity (w) |
|---|
| Evaporating Temperature (°C) |
|---|
| -40 | -35 | -30 | -25 | -20 | -15 | -10 | -5 | 0 | 5 |
|---|
| 32 | 1180 | 1940 | 2860 | 3980 | 5320 | 6880 | 8700 | 10800 | 13100 | 15700 |
| 38 | 934 | 1610 | 2430 | 3440 | 4650 | 6080 | 7750 | 9660 | 11900 | 14300 |
| 43 | | 1390 | 2130 | 3030 | 4130 | 5450 | 6990 | 8780 | 10900 | 13200 |
Frequency - 55
| Ambient (°C) | Refrigeration Capacity (w) |
|---|
| Evaporating Temperature (°C) |
|---|
| -40 | -35 | -30 | -25 | -20 | -15 | -10 | -5 | 0 | 5 |
|---|
| 32 | 1280 | 2100 | 3100 | 4300 | 5740 | 7410 | 9350 | 11600 | 14100 | 16800 |
| 38 | 1020 | 1740 | 2640 | 3720 | 5020 | 6550 | 8330 | 10400 | 12700 | 15300 |
| 43 | | 1510 | 2310 | 3280 | 4470 | 5870 | 7520 | 9410 | 11600 | 14000 |
Frequency - 65
| Ambient (°C) | Refrigeration Capacity (w) |
|---|
| Evaporating Temperature (°C) |
|---|
| -40 | -35 | -30 | -25 | -20 | -15 | -10 | -5 | 0 | 5 |
|---|
| 32 | 1470 | 2400 | 3530 | 4900 | 6510 | 8380 | 10600 | 13000 | 15700 | 18700 |
| 38 | 1170 | 2000 | 3010 | 4240 | 5690 | 7400 | 9380 | 11700 | 14200 | 17000 |
| 43 | | 1730 | 2640 | 3740 | 5070 | 6640 | 8460 | 10600 | 12900 | |
Note:
Performance data, based on 10K Superheat and 3.0K sub-cooling (outside cond)
BOCK® Plusbox units are supplied in a weatherproofed powder coated steel sheet housing.
Factory fitted with: BOCK® semi-hermetic compressor in acoustically lined encloser.
Factory fitted with: Danfoss FC103 Inverter.
Factory fitted with: Complete liquid and suction pipework including liquid line drier & sight glass.
Factory fitted with: AC low noise condenser fan & XGE fan speed controller.
Factory fitted with: Sump heater & oil separator.
Factory fitted with: KP17WB dual pressure control & MP55 oil pressure switch.
Factory fitted with: Electrical switch board & main isolator.
All electrical components are factory pre-wired.
R134A Frequency - 25
| Ambient (°C) | Refrigeration Capacity (w) |
|---|
| Evaporating Temperature (°C) |
|---|
| -30 | -25 | -20 | -15 | -10 | -5 | 0 | 5 | 10 |
|---|
| 32 | 812 | 1190 | 1670 | 2280 | 3000 | 3840 | 4810 | 5890 | 7090 |
| 38 | 697 | 1030 | 1470 | 2030 | 2700 | 3490 | 4400 | 5430 | 6570 |
| 43 | 608 | 903 | 1310 | 1830 | 2460 | 3210 | 4070 | 5050 | 6150 |
Frequency - 35
| Ambient (°C) | Refrigeration Capacity (w) |
|---|
| Evaporating Temperature (°C) |
|---|
| -30 | -25 | -20 | -15 | -10 | -5 | 0 | 5 | 10 |
|---|
| 32 | 1160 | 1680 | 2360 | 3210 | 4210 | 5380 | 6700 | 8180 | 9810 |
| 38 | 991 | 1460 | 2080 | 2860 | 3790 | 4890 | 6130 | 7540 | 9090 |
| 43 | 864 | 1280 | 1850 | 2570 | 3450 | 4480 | 5670 | 7010 | 8500 |
Frequency - 45
| Ambient (°C) | Refrigeration Capacity (w) |
|---|
| Evaporating Temperature (°C) |
|---|
| -30 | -25 | -20 | -15 | -10 | -5 | 0 | 5 | 10 |
|---|
| 32 | 1470 | 2130 | 2990 | 4040 | 5290 | 6740 | 8370 | 10200 | 12200 |
| 38 | 1260 | 1850 | 2630 | 3600 | 4760 | 6120 | 7660 | 9370 | 11300 |
| 43 | 1100 | 1630 | 2340 | 3240 | 4340 | 5610 | 7070 | 8710 | 10600 |
Frequency - 50
| Ambient (°C) | Refrigeration Capacity (w) |
|---|
| Evaporating Temperature (°C) |
|---|
| -30 | -25 | -20 | -15 | -10 | -5 | 0 | 5 | 10 |
|---|
| 32 | 1620 | 2340 | 3270 | 4430 | 5790 | 7360 | 9130 | 11100 | 13300 |
| 38 | 1390 | 2030 | 2880 | 3940 | 5210 | 6680 | 8350 | 10200 | 12300 |
| 43 | 1210 | 1790 | 2570 | 3550 | 4740 | 6130 | 7710 | 9480 | 11500 |
Frequency - 55
| Ambient (°C) | Refrigeration Capacity (w) |
|---|
| Evaporating Temperature (°C) |
|---|
| -30 | -25 | -20 | -15 | -10 | -5 | 0 | 5 | 10 |
|---|
| 32 | 1760 | 2540 | 3550 | 4790 | 6260 | 7950 | 9840 | 12000 | 14300 |
| 38 | 1510 | 2200 | 3120 | 4270 | 5630 | 7210 | 8990 | 11000 | 13200 |
| 43 | 1320 | 1940 | 2780 | 3840 | 5120 | 6610 | 8310 | 10200 | 12300 |
Frequency - 65
| Ambient (°C) | Refrigeration Capacity (w) |
|---|
| Evaporating Temperature (°C) |
|---|
| -30 | -25 | -20 | -15 | -10 | -5 | 0 | 5 | 10 |
|---|
| 32 | 2020 | 2910 | 4060 | 5470 | 7120 | 9020 | 11200 | 13500 | 16000 |
| 38 | 1730 | 2520 | 3570 | 4860 | 6400 | 8180 | 10200 | 12400 | 14800 |
| 43 | 1510 | 2220 | 3180 | 4380 | 5830 | 7500 | 9390 | 11500 | 13800 |
Note:
Performance data, based on 10K Superheat and 3.0K sub-cooling (outside cond)
BOCK® Plusbox units are supplied in a weatherproofed powder coated steel sheet housing.
Factory fitted with: BOCK® semi-hermetic compressor in acoustically lined encloser.
Factory fitted with: Danfoss FC103 Inverter.
Factory fitted with: Complete liquid and suction pipework including liquid line drier & sight glass.
Factory fitted with: AC low noise condenser fan & XGE fan speed controller.
Factory fitted with: Sump heater & oil separator.
Factory fitted with: KP17WB dual pressure control & MP55 oil pressure switch.
Factory fitted with: Electrical switch board & main isolator.
All electrical components are factory pre-wired.
R513A Frequency - 25
| Ambient (°C) | Refrigeration Capacity (w) |
|---|
| Evaporating Temperature (°C) |
|---|
| -30 | -25 | -20 | -15 | -10 | -5 | 0 | 5 | 10 |
|---|
| 32 | 897 | 1310 | 1820 | 2440 | 3170 | 4010 | 4960 | 6030 | 7210 |
| 38 | 756 | 1120 | 1580 | 2150 | 2820 | 3600 | 4490 | 5490 | 6610 |
| 43 | 645 | 963 | 1380 | 1900 | 2530 | 3260 | 4090 | 5040 | 6100 |
Frequency - 35
| Ambient (°C) | Refrigeration Capacity (w) |
|---|
| Evaporating Temperature (°C) |
|---|
| -30 | -25 | -20 | -15 | -10 | -5 | 0 | 5 | 10 |
|---|
| 32 | 1280 | 1850 | 2560 | 3420 | 4430 | 5580 | 6880 | 8330 | 9930 |
| 38 | 1080 | 1580 | 2220 | 3010 | 3940 | 5010 | 6220 | 7580 | 9080 |
| 43 | 914 | 1360 | 1950 | 2670 | 3530 | 4530 | 5670 | 6950 | 8360 |
Frequency - 45
| Ambient (°C) | Refrigeration Capacity (w) |
|---|
| Evaporating Temperature (°C) |
|---|
| -30 | -25 | -20 | -15 | -10 | -5 | 0 | 5 | 10 |
|---|
| 32 | 1620 | 2330 | 3230 | 4300 | 5550 | 6970 | 8560 | 10400 | 12300 |
| 38 | 1360 | 1990 | 2800 | 3780 | 4920 | 6240 | 7730 | 9380 | 11200 |
| 43 | 1160 | 1720 | 2450 | 3340 | 4410 | 5640 | 7030 | 8590 | 10300 |
Frequency - 50
| Ambient (°C) | Refrigeration Capacity (w) |
|---|
| Evaporating Temperature (°C) |
|---|
| -30 | -25 | -20 | -15 | -10 | -5 | 0 | 5 | 10 |
|---|
| 32 | 1780 | 2560 | 3540 | 4700 | 6060 | 7600 | 9320 | 11300 | 13300 |
| 38 | 1500 | 2190 | 3060 | 4130 | 5370 | 6800 | 8410 | 10200 | 12200 |
| 43 | 1280 | 1890 | 2680 | 3650 | 4810 | 6140 | 7640 | 9320 | 11200 |
Frequency - 55
| Ambient (°C) | Refrigeration Capacity (w) |
|---|
| Evaporating Temperature (°C) |
|---|
| -30 | -25 | -20 | -15 | -10 | -5 | 0 | 5 | 10 |
|---|
| 32 | 1930 | 2780 | 3830 | 5080 | 6540 | 8190 | 10100 | 12100 | 14300 |
| 38 | 1620 | 2370 | 3320 | 4460 | 5800 | 7330 | 9040 | 11000 | 13000 |
| 43 | 1390 | 2040 | 2900 | 3950 | 5190 | 6610 | 8220 | 10000 | 12000 |
Frequency - 65
| Ambient (°C) | Refrigeration Capacity (w) |
|---|
| Evaporating Temperature (°C) |
|---|
| -30 | -25 | -20 | -15 | -10 | -5 | 0 | 5 | 10 |
|---|
| 32 | 2210 | 3170 | 4370 | 5780 | 7420 | 9260 | 11400 | 13600 | 16000 |
| 38 | 1860 | 2710 | 3780 | 5070 | 6570 | 8280 | 10200 | 12300 | 14600 |
| 43 | 1590 | 2340 | 3300 | 4480 | 5870 | 7460 | 9250 | 11300 | 13400 |
Note:
Performance data, based on 10K Superheat and 3.0K sub-cooling (outside cond)
BOCK® Plusbox units are supplied in a weatherproofed powder coated steel sheet housing.
Factory fitted with: BOCK® semi-hermetic compressor in acoustically lined encloser.
Factory fitted with: Danfoss FC103 Inverter.
Factory fitted with: Complete liquid and suction pipework including liquid line drier & sight glass.
Factory fitted with: AC low noise condenser fan & XGE fan speed controller.
Factory fitted with: Sump heater & oil separator.
Factory fitted with: KP17WB dual pressure control & MP55 oil pressure switch.
Factory fitted with: Electrical switch board & main isolator.
All electrical components are factory pre-wired.
Sorry, you can only compare products from the same category.